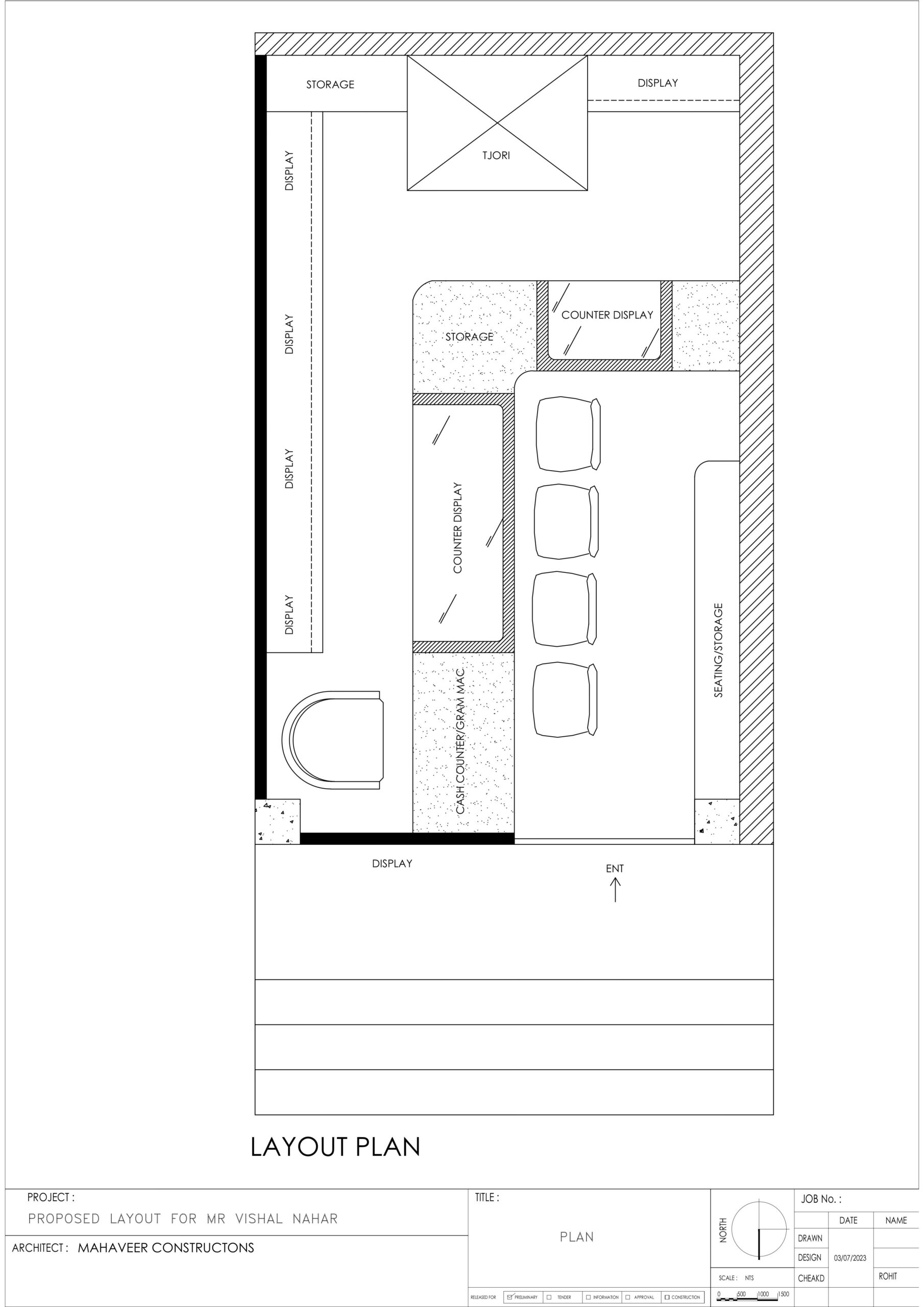
Vishal Jewellers – The Epitome of Opulence
At Bhagwan Mahaveer Road,Sindhanur I Space- 250 Sq.Ft
A jewelry store exudes exclusivity and trust. Our design philosophy ensures that every element of Vishal Jewellers enhances customer engagement and elevates the brand’s image.

